Ljubljana, Center – Prostoren dupleks na Prulah
450.000 €
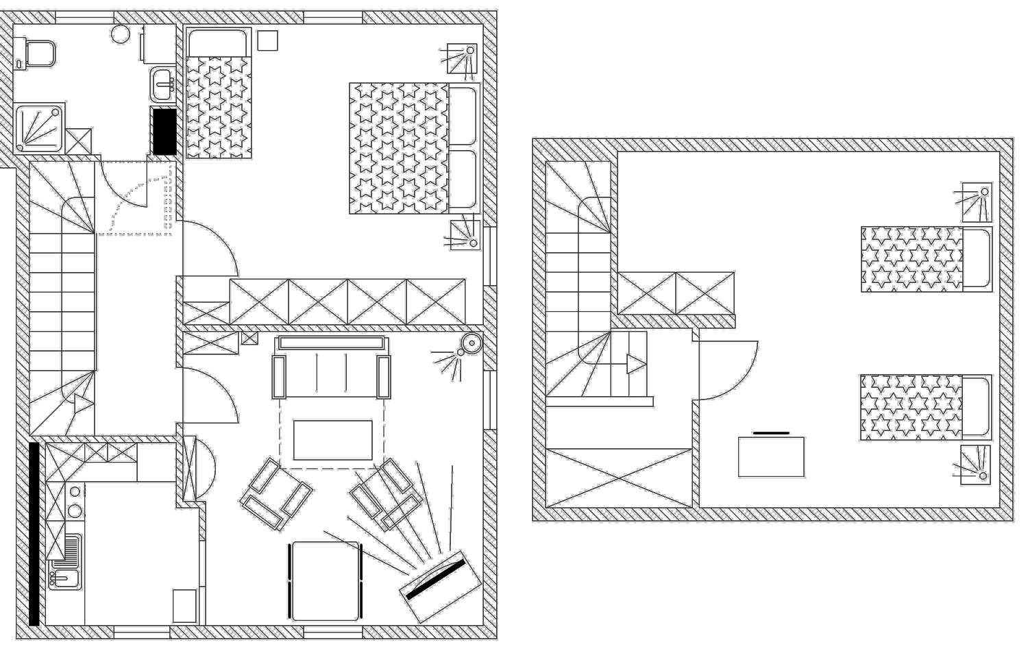
Opis
To svetlo in prostorno dupleks stanovanje se nahaja v drugem nadstropju prenovljene stavbe v zelo zaželeni soseski Prule.
V spodnjem nadstropju je udobna dnevna soba z jedilnico, opremljena z raztegljivim kavčem, dvema foteljema in jedilno mizo za šest oseb. Bivalni prostor se nadaljuje v popolnoma opremljeno kuhinjo z aparati, vključno s hladilnikom, pomivalnim strojem, pečico in kuhalno ploščo.
V tem nadstropju je tudi velika glavna spalnica z zakonsko posteljo in dodatno enojno posteljo ter omarami in kopalnica s prho in pralnim strojem.
Na hodniku zgornjega nadstropja so priročne nizke omarice za dodatno shranjevanje. V zgornjem nadstropju se nahaja prostorna druga spalnica z dvema enojnima posteljama in strešnim oknom, s katerega se odpira pogled na ljubljanski grad.
Tako spalnici kot dnevni prostor so klimatizirani, ogrevanje je na plin. Stanovanju pripada tudi shramba v pritličju. Možnost pridobitve parkirne dovolilnice.
Čeprav bi stanovanje potrebovalo vsaj delno prenovo, predstavlja odličen potencial tako za stalno bivanje, kot za oddajanje. Odlična lokacija nudi vso infrastrukturo, staro mestno jedro Ljubljane pa je oddaljena le nekaj minut hoje.
Prodajalec kot pogoj za sklenitev kupoprodajne pogodbe izpostavlja, da mora kupec prodajalcu povrniti del stroškov prodaje nepremičnine v višini 2% pogodbene cene + DDV.
Property details
- Property code KK1876
- Vrsta Stanovanje
- Renovated: 1997
- Price in Euros 450.000 €
- Bedrooms: 2
- Velikost: 99 m2
- Area: Mesto
- Mesto: Ljubljana
- Energy level D (60 - 105 kWh/m2a)
Ratings and proximity
-
Location:
-
Rental Potential:
-
Access from Airports:
-
Views:
-
Capital Growth:
- Ski Resort: 30 min
- Coast: 1 h
- Italy: 1 h
- Austria: 1 h
- Croatia: 1 h







